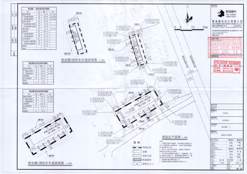
近日,有关部门根据规定,将广西贵港市港南区木梓春天商业楼**总平面图予以批前公示,具体信息如下:
一、项目地址:贵港市港南区木梓镇。
二、公示内容:广西贵港市港南区贵港市港南区木梓春天商业楼**总平面图主要经济技术指标分别如下:
项目**总用地面积为793.05㎡,总建筑基底面积为478.00㎡,总建筑面积为2283.25㎡,总计容建筑面积1911.25㎡;(2)容积率2.41;(3)建筑密度60.27%;

近日,有关部门根据规定,将广西贵港市港南区木梓春天商业楼**总平面图予以批前公示,具体信息如下:
一、项目地址:贵港市港南区木梓镇。
二、公示内容:广西贵港市港南区贵港市港南区木梓春天商业楼**总平面图主要经济技术指标分别如下:
项目**总用地面积为793.05㎡,总建筑基底面积为478.00㎡,总建筑面积为2283.25㎡,总计容建筑面积1911.25㎡;(2)容积率2.41;(3)建筑密度60.27%;
