一场疫情反映出了很多以前我们没有注意的东西,楼市也一样。对于普通购房者而言,买房的逻辑恐怕会产生翻天覆地变化,比如物业将上升成为重点考虑的因素,再比如挑房子的理念,也会改变。
1
『通风』
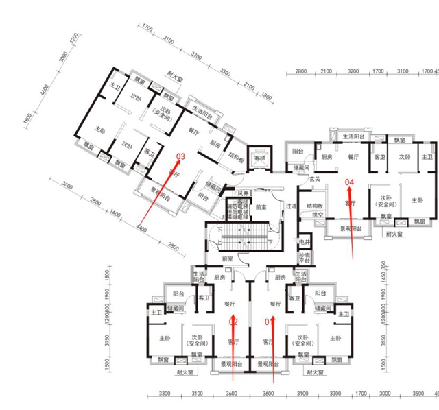
能否通风将会成为人们极端关注的问题,因为在疫情中,所有专家都在强调“通风、通风”。传统的塔式住宅将遇到巨大的市场阻力。

可以看到,塔式住宅的中户,不仅不能直接通风,反而存在通过交通和交叉污染的风险。
可以看到,工字型的住宅设计中,所有户型均可实现自我的南北通风,大大降低在交通和部分发生的空气交叉感染风险。

(设计图出自《碧桂园金科博园府8#标准层》)
2
『卫生间要干湿分离或三分离』
两次疫情都出现了楼层上下感染的案例,罪魁祸首就是设计不合理的卫生间。

【卫生间错误案例】
上图就是一个典型案例,卫生间地漏设于此位置,存水弯的水干涸是不可避免的,导致下水道废气的反流。
所以普通卫生间一定要注意地漏的设置位置,尽量将洗水盆接至地漏,保持存水弯的长期有水状态。当然有条件的卫生间要做成干湿分离。* **的做法是三分离,甚至是四分离卫生间。
符合现代生活的户型设计,应设置多卫生间,避免一家老小“抢厕大战”,同时,更应该从初始就在管道设计上为业主创造干湿分离的条件。

(图片出自《碧桂园金科博园府147㎡户型图》)
3
『玄关要完整空间』
完整的玄关将成为必需品,再小的户型也愿意形成相对完整的换鞋、脱外衣程序,防止室外的病菌对住宅内部的干扰。


(图片出自《碧桂园金科博园府95㎡户型》)
4
『主卧室要自成系统』
尽量将主卧室做成带独立卫生间,方便家庭内部对发热人员进行有效隔离。

(图片来自碧桂园金科博园府127㎡户型)
同时主卧室本身如果能够进行有效地自然通风将会受到欢迎。

△其主卧套房且可以独立通风
5
『多房间、多功能分区』
部分城市里的单位房、自建房都有房间少而大的特征,然而,由于疫情,网课、网上办公等在家工作学习在未来将成为一个必然的趋势,因此家庭成员更需要自己的独立空间(如书房、画室、直播室等)。多房间、多功能分区、动静分离,除了能够有效减少家庭成员之间的互相感染之外,也更加符合现代人的居住要求。
以下户型为145㎡户型,为4+2房。即除了右侧生活空间(“静”区)外,左侧可改造成儿童室、书房、健身房,与生活空间动静相隔,互不干扰。

(图片出自《碧桂园金科博园府147㎡户型图》)
6
『独立电梯厅』
可以预见,多层、小高层住宅的独立电梯厅将会受到强烈追捧。
电梯本就是一个封闭而窄小的空间,感染极易发生,因此,避免感染* 好的方式就是自家拥有独立电梯厅。
下图为6层叠拼的中叠,自家从地下室、花园及起居室都有私家电梯可以直达,既享受了电梯的便利,又避免了外人进入带来的细菌感染。

(图片出自《碧桂园金科博园府17#叠墅户型手册-中叠》)
7
『生活环境的改变』
许多购房者有个误区,认为生活在越闹市区的位置越好。但纵观大城市的住宅发展史,越是**的小区,越是想要改善生活的人群,越选择具有山水生态资源的地区居住。
碧桂园金科博园府位于鲤鱼江湿地公园范围内,距离园博园仅500米,且在社区内,自然水系环腰,水系旁有滨水景观木栈道,在不出小区的情况下,就可以在水边散步;湿地具有净化功能,让空气的更新更加迅速,大大降低气溶胶浓度,避免气溶胶传播。

(图片选自碧桂园金科博园府总**图)
8
『物业的选择』
物业管理也尤为重要。有的小区因为住户人数不足,很难进行系统化的防疫管理;而在居家隔离中,送菜上门、日用品代采购、送口罩、日常消毒、疫情通报等细节***,就更能体现小区的物业管理水平。

(图为贵港碧桂园物业为业主采购蔬菜)
对于住宅,随着时间的发展,人们对于居住体验和细节就愈发看重。无论如何,希望希望我们的生活会越来越美好。
约95-145㎡园景高层
约160-180㎡城市叠墅
火|热|销|售|中


























